Apartamento T2 remodelado ao Lumiar
- 3
- 2
- 1
- Útil: 65m2
- Bruta: 80m2
- C.E.: C
-
Ano: 1967
- Ref: 466-MCPN60078
Lisboa, Lisboa, Santa Clara, Santa Clara (Ameixoeira)
Apartamento T2 totalmente remodelado, cozinha completamente equipada, zona tranquila muito central encontrando-se muito próximo do Lumiar, todo o tipo de transportes e comércio. Estacionamento muito fácil. Contacte-me para visitar!
- Janelas vidro duplo
- Máquina lavar loiça
- Mobilado
- Vista da Cidade
- Cozinha Equipada
- Máquina lavar roupa
- Vista de Campo/Serra
Nome do piso:
primeiro piso
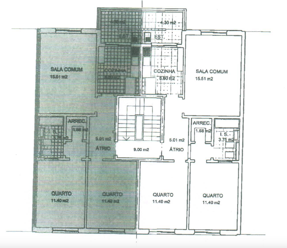
| Divisão |
Área |
Nota |
| Sala |
16.00m2
|
|
| Quarto |
12.00m2
|
|
| Quarto |
12.00m2
|
|
| Cozinha |
7.00m2
|
|
| WC |
4.00m2
|
|
| Despensa |
2.00m2
|
|