Leiria, Óbidos, Santa Maria, São Pedro e Sobral da Lagoa, Arelho
It is with great distinction that we present this remarkable detached 2-bedroom villa, located in a prestigious gated community in the serene village of Arelho. This property represents the perfect balance between comfort, privacy and proximity to the surrounding nature.
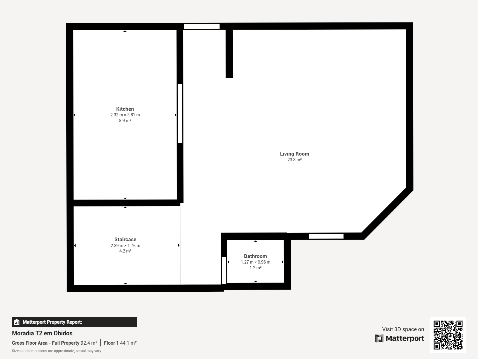
The villa is spread over two carefully distributed floors. On the first floor, there is a large living room with a fireplace with a wood burning stove, ideal for creating a cozy atmosphere on winter afternoons. The kitchen, fully equipped with appliances, is very functional. There is also a guest bathroom on this floor.
On the second floor there are two bedrooms, both generously sized and both en-suite with private bathrooms. This area has been designed to offer maximum serenity and comfort.
Outside, the villa has a private space, a leisure area with a barbecue and direct access to the villa's private pool - ideal for enjoying sunny days to the full. The property also has an exclusive parking space and excellent sun exposure throughout the day.
The location is another of its assets: just a few minutes from the idyllic Óbidos Lagoon, where nature reveals itself in all its splendor, and a short distance from the picturesque medieval town of Óbidos, a storehouse of culture and history. The villa is well served by the public transport network, facilitating access to services, schools and the main roads.
This is a rare opportunity for those who wish to combine tranquillity, comfort and prestige in a single home.
If you wish to adapt the style for a real estate brochure or for publication on online platforms, I can also adjust the text to a more direct or commercial tone.